设计标准:CB-1258 法兰连接尺寸:JIS B2212 JIS B2213 JIS B2214 结构长度:JIS B2002-1987
压力试验:JIS B2003-1987
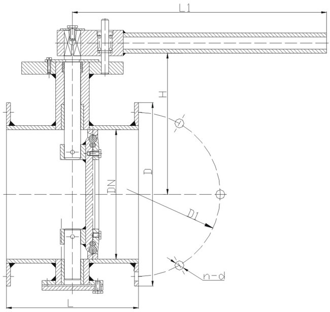
驱动形式:手柄、蜗轮、气动、电动等
| 公称通径 | DN | 830W | 830L |
|---|---|---|---|
| 2″~36″ | 2″~36″ | ||
| 公称压力 | PN | 10K | 20K |
| 试验压力 | 强度实验 | 1.5 | 3.0 |
| 密封实验 | 1.1 | 2.2 | |
| 适用介质 | 水、海水、蒸汽、油品等 | ||
| 适用温度 | -29~425℃ | ||
| 零件名称 | 材料 |
|---|---|
| 阀体 | WCB、304、316、316SS、CF8M |
| 阀板 | WCB、304、316、316SS、CF8M |
| 阀杆 | 316、2Cr13、1Cr18Ni9Ti |
| 密封圈 | 316、氟塑料 |
| 填料 | 柔性石墨、氟塑料 |


声明:
本文中所有文字、数据、图片均只适用于参考。需要查看更多的CB-1258 手柄通风蝶阀性能参数、结构尺寸参数、价格等详情,或要求高质量印刷样本,请联系我们。
· 电话:18717746989
· 邮箱:sales@shczvalve.com
7188彩票订货须知:
一、A:产品名称、型号、公称通径B:介质及温度、压力范围C:是否有附件、交货期、特殊要求等以便我们的为您正确选型。
二、若已经由设计单位选定我公司的阀门型号,请您根据阀门参数直接与我们销售中心订购。
三、当您使用的场合非常重要或环境比较复杂时,请您提供设计图纸和详细参数,我们的工程师专家会为您审核与分析。我们可以为您提供解决方案,包括设计、定做、成套、运行、服务。我们一直致力于阀门行业领域,为您提供船用阀门知识、服务、技术顾问。
感谢您访问我们的网站【www.shczvalve.com】,如有任何疑问,您可以致电给我们,我们一定会尽心尽力为您提供服务。本厂提供船用蝶阀、船用闸阀、船用止回阀、船用调节阀、船用减压阀、船用呼吸阀、高速透气阀、船用快关阀、船用自闭阀、船用旋塞阀、船用消防阀、船用通海阀、船用防浪阀、船用滤器、船用空气帽、船用球阀、船用截止阀、船用截止止回阀、船用阀组、船用截止阀箱、船用针型阀、船用电磁阀、船用隔膜阀、船用压力表阀等各类船用阀门,不锈钢阀门。