船用衬氟法兰球阀

船用衬氟法兰球阀
  上海7188彩票阀门生产的船用阀门可按中国GB、机械部JB、化工标准HG、美标API、ANSI、德标DIN、日本JIS、JPI、英标BS生产,企业积极实施ISO9001:2000质量认证体系,并严格按照各技术标准和图纸设计、生产、检验。以优异的品质,完善的服务和及时的交货赢得了众多造船、修船企业的一致信赖和好评。并可根据用户需要提供CCS、LR、ABS、GL、DNV、BV、NK、RINA等世界知名船级社的产品检验证书。7188彩票阀门拥有专业的生产设备和技术工程师,有能力按照各国标准以及各种行业标准生产制造优质船用阀门。  
产品咨询热线:18717746989

船用衬氟法兰球阀概述:
Q41F46衬里球阀采用了氟塑料作为球阀的内衬,并配之以新型的带杆球体结构,再加上其独特的弹性唇式密封座结构,使其具有普通球阀的各项优点,能在大压差和较大的温差变化范围内具有高密封性能和低操作扭矩。可作开关或调节之用,本产品适用于各种工业管道中液体和气体的输送(包括蒸气),在各种酸、碱、盐类等强腐蚀性介质中均能很好地工作。

 

 

船用衬氟法兰球阀主要零件材料 Main parts material: 

零件名称 Part name
材质 Material
左阀体Left Body
Cast steel lined with FEP
右阀体Right Body
Cast steel lined with FEP
带杆球体Ball
Cast steel lined with FEP
填料箱Stuffing box
Cast steel lined with FEP
密封圈Seal ring
PTFE
填料压盖Gland flange
Cast steel
填料Packing
PTFE
手柄Lever
Cast steel

主要性能规范
 

公称压力
Nominal pressure
试验压力
Test pressure
工作压力
working pressure
工作温度
working temperature
密封
强度
10Kgf/Cm2
10Kgf/Cm2
15Kgf/Cm2
10Kgf/Cm2
-80~110

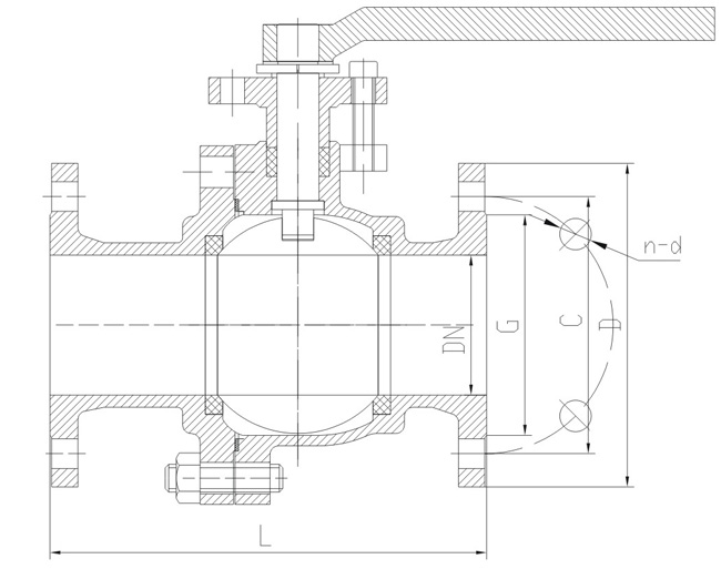
主要外形尺寸及连接尺寸 Main outline dimensions and connection dimensions: 

公称通径
尺       寸
L
D
D1
D2
b
f
Z-Ø
Lo
H
25
160
115
85
65
18
3
4-Ø14
180
104
32
165
135
100
78
18
3
4-Ø18
200
115
40
180
145
110
85
20
3
4-Ø18
200
125
50
200
160
125
100
20
3
4-Ø18
250
132
65
220
180
145
120
22
3
4-Ø18
250
148
80
250
195
160
135
22
3
8-Ø18
300
165
100
280
215
180
155
24
3
8-Ø18
350
180
125
320
245
210
185
26
3
8-Ø18
600
230
150
360
280
240
210
28
3
8-Ø23
800
283
200
400
335
295
265
30
4
8-Ø23
1200
325

声明:
本文中所有文字、数据、图片均只适用于参考。需要查看更多的船用衬氟法兰球阀性能参数、结构尺寸参数、价格等详情,或要求高质量印刷样本,请联系我们。

· 电话:18717746989
· 邮箱:sales@shczvalve.com
 
7188彩票订货须知:(国家标准): 
一、A:产品名称、型号、公称通径B:介质及温度、压力范围C:是否有附件、交货期、特殊要求等以便我们的为您正确选型。  
二、若已经由设计单位选定我公司的阀门型号,请您根据阀门参数直接与我们销售中心订购。  
三、当您使用的场合非常重要或环境比较复杂时,请您提供设计图纸和详细参数,我们的工程师专家会为您审核与分析。我们可以为您提供专业的解决方案,包括设计、定做、成套、运行、服务。我们一直致力于阀门行业领域的领导者,为您提供最新的船用阀门知识、最好的服务、最佳的技术顾问。  
 
      感谢您访问我们的网站【www.shczvalve.com】,如有任何疑问,您可以致电给我们,我们一定会尽心尽力为您提供优质的服务。本厂专业提供船用蝶阀船用闸阀船用止回阀船用调节阀、船用减压阀、船用呼吸阀、高速透气阀、船用快关阀、船用自闭阀、船用旋塞阀、船用消防阀、船用通海阀、船用防浪阀、船用滤器、船用空气帽、船用球阀船用截止阀、船用截止止回阀、船用阀组、船用截止阀箱、船用针型阀、船用电磁阀、船用隔膜阀、船用压力表阀等各类船用阀门,不锈钢阀门。