船用青铜四进位吸入通海阀GB/T11692-1989

产品名称:船用青铜四进位吸入通海阀
产品型号:GB/T11692-1989
公称通径:DN80~400
公称压力:0.4Mpa
上海7188彩票阀门是生产船用青铜四进位吸入通海阀GB/T11692-1989厂家,可提供各种通海阀规格型号,图片,价格,尺寸,图纸。
产品咨询热线:18717746989
船用青铜四进位吸入通海阀GB/T11692-1989船用青铜四进位吸入通海阀GB/T11692-1989
通海阀,是安装于船舶空载水线以下的两舷、舭部或船底的进水阀。又称“海底阀”。安装于船舶空载水线以下的两舷、舭部或船底的进水阀。通过手轮或甲板传动机构启闭阀门,以控制船外水进入船内,以供船上清洁卫生和冷却机器等用。

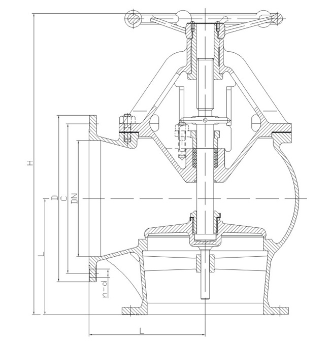
船用青铜四进位吸入通海阀GB/T11692-1989结构图与尺寸表

声明:

本文中所有文字、数据、图片均只适用于参考。需要查看更多的船用青铜四进位吸入通海阀GB/T11692-1989性能参数、结构尺寸参数、价格等详情,或要求高质量印刷样本,请联系我们。

· 电话:18717746989
· 邮箱:sales@shczvalve.com
 
7188彩票订货须知: 
一、A:产品名称、型号、公称通径B:介质及温度、压力范围C:是否有附件、交货期、特殊要求等以便我们的为您正确选型。  
二、若已经由设计单位选定我公司的阀门型号,请您根据阀门参数直接与我们销售中心订购。  
三、当您使用的场合非常重要或环境比较复杂时,请您提供设计图纸和详细参数,我们的工程师专家会为您审核与分析。我们可以为您提供解决方案,包括设计、定做、成套、运行、服务。我们一直致力于阀门行业领域,为您提供船用阀门知识、服务、技术顾问。  
 
      感谢您访问我们的网站【www.shczvalve.com】,如有任何疑问,您可以致电给我们,我们一定会尽心尽力为您提供服务。本厂提供船用蝶阀船用闸阀船用止回阀船用调节阀、船用减压阀、船用呼吸阀、高速透气阀、船用快关阀、船用自闭阀、船用旋塞阀、船用消防阀、船用通海阀、船用防浪阀、船用滤器、船用空气帽、船用球阀船用截止阀、船用截止止回阀、船用阀组、船用截止阀箱、船用针型阀、船用电磁阀、船用隔膜阀、船用压力表阀等各类船用阀门,不锈钢阀门。


上一篇:没有了
上一篇:没有了